Statinių statybvietės adresas Nekilnojamojo turto registre:
Žemės sklypas, kadastro Nr. 7550/0003:435, adresas: Skuodo m. Krantinės g. 1A.
Statinių esama ir (ar) numatoma pagrindinė naudojimo paskirtis:
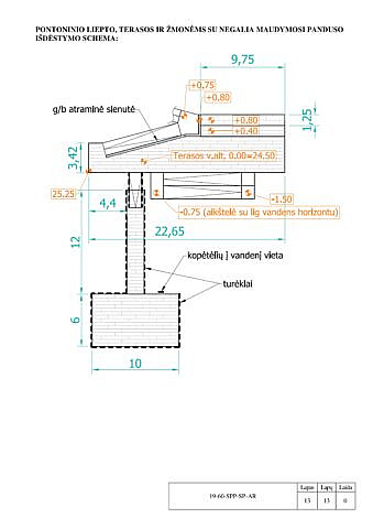
Projektuojamas statinys – Inžinerinių statinių statyba (paplūdimio sutvarkymas), naudojimo paskirtis – kitos paskirties inžineriniai statiniai. Statinio kategorija – II grupės nesudėtingas.
Projektinius pasiūlymus parengusio projektuotojo (juridinio ar fizinio asmens) įgalioto atstovo, galinčio informuoti apie projektinius pasiūlymus, vardas, pavardė, elektroninio pašto adresas ir telefono numeris:
Projektuotojas – Uždaroji akcinė bendrovė „Patvanka“, įmonės kodas 133364425, Savanorių pr. 192, Kaunas. Projekto vadovas – Gediminas Kemzūra, tel. 8 698 38 296, el. p. gediminas@patvanka.lt.
Statytojas:
Skuodo rajono savivaldybė.
Susipažinimas su projektiniais pasiūlymais:
Susipažinti su projektiniais pasiūlymais galima Skuodo r. savivaldybės interneto svetainėje adresu www.skuodas.lt ir (ar) atvykus į projektuotojo UAB „Patvanka“ būstinę adresu: Savanorių pr. 192, Kaunas (darbo dienomis nuo 8 val. iki 17 val., tel. 8 698 38 296) ir Vilniaus g. 13, Skuodas, 204 kab. (darbo dienomis nuo 8 val. iki 17 val., tel. 8 440 45 557).
Informacija, iki kada ir kaip iki viešo susirinkimo visuomenės atstovai projektuotojui gali teikti pasiūlymus dėl projektinių pasiūlymų:
Teikti pasiūlymus galima iki 2020-07-07 raštu (adresu: Savanorių pr.192, Kaunas), el. paštu (gediminas@patvanka.lt) arba el. paštu marius@kemzura.com.
Kada ir kur vyks viešas susirinkimas:
Viešas susirinkimas vyks 2020 m. liepos 7 d. 17.00 val. Skuodo m. Vilniaus g. 13, posėdžių salė.
Projektiniai pasiūlymai_2020-06-15
Papildoma informacija:
PROJEKTINIAMS PASIŪLYMAMS PRITARTA
https://planuojustatyti.lt/info-portal/








